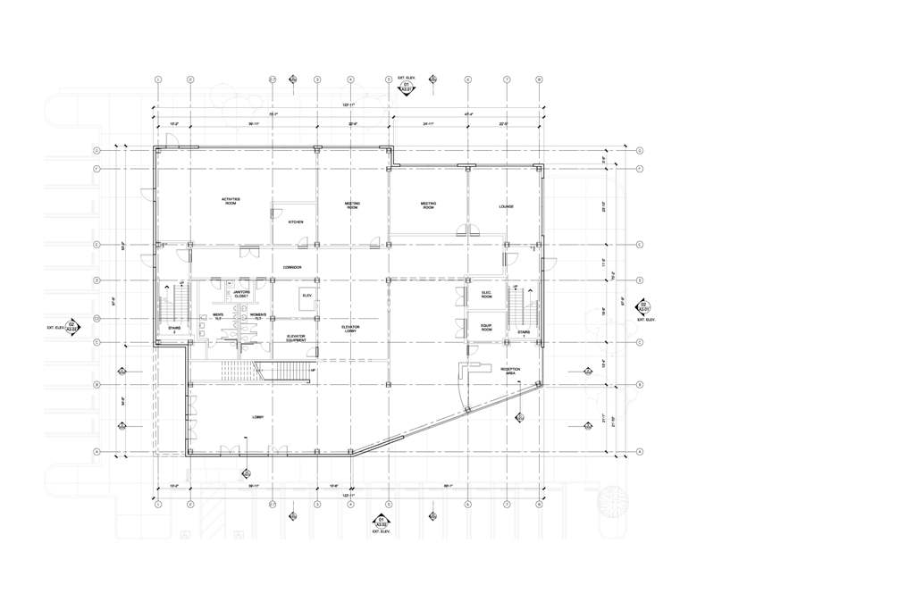
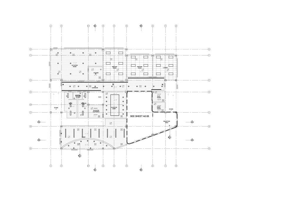
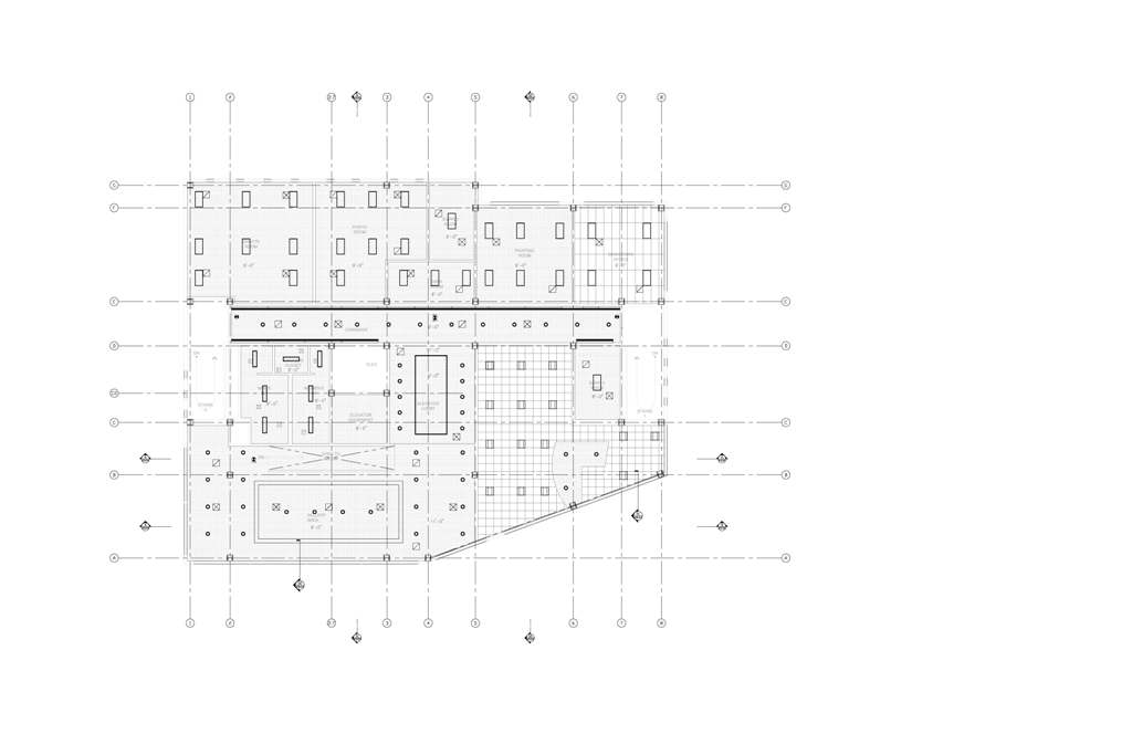
Our extensive knowledge of As built documentation and building systems gives us the edge in our industry and helps us serve your needs even better. We pride ourselves on adapting to our clients' particular situations and providing the best services available to meet those needs. Below you will see some of the projects that AP Dimensions has completed. If you would like more information about particular project, please give us a call or email anytime.






